
影院构建过程、声学/光学处理及特别设计
本案要解决的一大痛点是:该空间位于别墅顶楼,而非通常用作影音室的地下室;后墙有一个很大的落地窗,侧墙也有两面窗户,故而如何处理声学和光学的问题,成为首要考虑的难题。
针对声学处理,赛宾团队做出以下解决措施。
窗的处理。除了通过厚重的绒布窗帘来解决室内吸音问题,在影音室建设过程中,将窗框周围贴上密封胶条,总计可降低噪声级(14~18)dB,关严以后更是能够做到使室内噪声级降低(10~20)dB。
门的处理。使用专业声学隔音门,门体实物隔声有效性更高,配套热磁吸附阻尼密闭胶条和封闭式静音门锁,增加空气隔声量的同时,有效降低开关时门页碰撞声和门锁机械声,出来的效果基本达到隔音值40dB左右,满足空间效果。



墙身&天花的处理。使用阻尼隔音毡,绿色环保,超柔韧性,超强自粘胶,融入基材表面,产生优良的宽频段阻尼隔声性能;再在表面设计声学调谐板做外饰面,简洁的风格设计,融入性很强,多样性居家环境都适用。波浪状的天花造型,起到很好的声学作用。
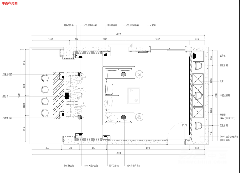
超过40㎡的影音室空间,可以容纳更多的人体验。为了做到这一点,结合专业考量和实际需求出发,在后排垫高,做一个楼梯式的台阶设计。既满足了容纳更多人体验的需求,又因为后排台阶高于前排,确保了后排观影不会被遮挡。


针对光学处理,赛宾团队做出以下解决措施。
运用厚实的绒布窗帘,减少外界光线干扰。外界光线的干扰,主要是通过窗户和门缝,选用厚重且柔软的绒布窗帘,不仅能很大程度地隔绝外界光线的干扰,还能对室内吸音提供一定的帮助。
精心设计的灯光。建议室内灯光设计,做到不会直接投在投影幕上,同时也注意在观影时关闭所有灯光,避免墙壁等反射带来光污染。如有需要,可以开启侧墙中的灯带,整体以暖光为主,提供照明功能的同时,还能提升观影的氛围感和整体美学设计。
注意家具沙发的选择。影院采用色调暗沉的皮质沙发,避免了木质沙发表面具有的光泽感,带来反射光线的问题。


精心考量的器材摆放和安装方式。
为了使整体设计更符合时下的家居流行——追求极简、展现雅奢,赛宾团队利用观影前方的空间,定制了一个“器材设备间”。先打好专业的木框架,再根据专业测量后得到的音箱定位,将设备整齐有序地陈列其中,最后安装上180英寸8K高增益透声幕,将器材隐藏其中,达到极简设计的目的。

除此之外,因为空间长度较长,为了避免前排的环绕音箱可能无法有效覆盖后排区域,导致后排观众的声音体验大打折扣。通过在后排位置额外安装环绕音箱,可以形成更完整的声场包围,确保无论观众坐在哪个位置,都能听到清晰、均衡的环绕声效果。


设计精妙的星空顶。星空顶除了拥有绝佳的天花声学处理外,其神秘、悠远、深邃的存在特点,让影音室首先能从视觉上拉伸效果,同时还能起到扩展空间的作用,让空间从根本上摒弃压抑、局促之感,从而徜徉于熠熠生辉的浩瀚星空下,绵长静谧。
空间为显生动活泼,在墙体设计黑色包边线条,让影音室富有层次感,在风格上俏皮生动,不会呆板。后排座位后的盈余空间,用于建设一个小吧台,旁边摆放的小酒柜可以用于放置酒水或冰镇饮料,方便接待客人观影或者欢唱K歌。
考虑到影音室分别有影院和KTV两套系统,操作过于麻烦,特意配置了Control4智能控制方案。它可以一键式开启影院、一键式从影院切换到KTV等,即一键式实现我们所有想实现的操作,带来更加方便快捷的体验效果。


设计与调试心得
影音室,“量身定制”绝非简单营销,而是真正解决客户痛点。每个空间都有其独特的声学特性,每对耳朵都有不同的聆听偏好,每种观影习惯都值得被尊重。赛宾团队深知,标准化的影音方案无法满足用户对极致体验的追求。
因此,从声学处理到设备选型,从空间布局到操作逻辑,想的不仅是技术参数,更是用户每次按下播放键时的期待与满足。量身定制,就是让科技真正服务于人,让每个细节都为您而生。

点评
这是个位于别墅顶楼、拥有多面窗户的“非理想”空间。集成商攻克了声学隔音与光学遮蔽两大难题,并且进行了空间优化与特色设计。同时通过星空顶和智能控制来实现氛围营造与操控整合。正如设计师所说,他们通过非标准化的方案,来诠释“量身定制”的理念,由此打造出一个具有良好体验的视听空间。




用户使用需求
佛山自建别墅大宅,业主为成功企业家,这个私人影音天地,要求既能看电影,又可满足日常唱K需求,足不出户就能享受到专业影院和KTV室的体验。
认识设计师
项目设计总监:黄永相
工程监理:蒋焕
设计公司:广东赛宾科技有限公司
空间信息与投入
空间尺寸:长9.24×宽4.83×高3.36m,面积44.6㎡
案例位置:佛山自建别墅顶层
器材列表
9.2.4声道影院系统
主音箱:MASU×3
环绕音箱:MASU FB-8×6
天花音箱:MASU CV-8×4
超低音:Wharfedale W-15Pro×2
环绕声前后级:JBL、Mark-lin以及Saibin定制S2-1100后级功放等
投影机:EPSON CH-TZ3000
透声幕:Swein 180英寸
7.2声道KTV方案
视易K73(6T)点歌机
铂锐21.5英寸点歌屏
Mark-lin P.1前级效果器
Mark-lin F-60D无线麦克风
ABL V-80i电源时序器
智能中控
Control 4智能主机
Control 4遥控器套装
SED双联网关
SED 8键情景开关×2

※ 影音中国网原创稿件,未经许可不得转载、节录及改编。
※ 致读者:影音CN所刊案例均为设计师投稿。为保障原作者权益,减少盗图纠纷,案例版面图片均已加水印处理。由此可能影响读者的阅读,特表歉意。






