
影院构建过程、声学/光学处理及特别设计
在别墅设计中,打造一间私人定制影音室已成为品质生活的标配。无论是沉浸于高分电影之中,还是酒足饭饱后与亲友欢唱,这都是一个能让心灵放松的空间。一间兼顾品质与细节的独立影音室,能全方位满足以上场景,为业主的私人影音生活带来美好体验。
明确业主需求,是开展本案设计的前提。根据业主对音效的要求与使用场景,确定了影音室的功能定位。了解到业主热爱电影,对画质和音效均有较高要求,希望空间落地效果能接近试片室级别,同时还需具备 KTV 功能,赛宾团队由此展开构建工作。


影音室需避免外部噪音干扰,同时也不应打扰家人或邻居休息。别墅地下室具备天然的隔声条件,适合建造影音室。经与业主积极沟通,决定利用地下室靠角落的房间进行建造。
该独立空间长5.72米、宽4.23米、层高2.8米,面积约24㎡,呈长方形,比例也比较适合打造影音室。唯一需注意的是,应尽量保留舒适的层高。



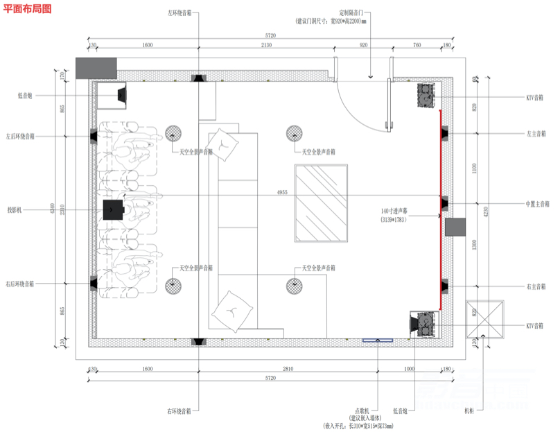
本案经现场勘查后,借助系统化的声学处理方案,采用专业隔音材料及房间声学优化,有效阻止声音外泄,并确保每个座位都能获得良好的视听感受。内饰方面,本案对反射率、色彩及表面构造进行了全面细致的考量,通过装修设计满足空间美学。地面采用弹性且具吸音效果的材料,墙面使用吸声软包,天花板采用吊顶形式,在缓解首次反射声的同时,也起到装饰作用。再结合空间整体氛围,采用 LED 灯带进行场景氛围的渲染,打造高颜值且具备专业效果的影音室。




设计与调试心得
布局上,前置音箱采用嵌入式安装,与墙面融为一体,并隐藏于150英寸4K透声幕之后。除了音箱,所有线缆均预埋于墙体,实现真正的“零可见”。这种嵌入式安装不仅节省空间,更让整体环境保持纯粹简洁,完美契合现代家居美学。
设备安装完成后,进行专业调试,包括影音室的声学调整——通过吸声、扩散与反射处理,打造符合业主个人听觉偏好的空间,以及对器材进行调校。赛宾调音工程师根据现场实际情况及业主的听觉喜好进行优化,确保影音室的视听效果令业主满意。经专业调校的丹拿7.2.4杜比全景声影院系统,让每位体验者无论位于空间何处,都能享受剧院级音质。
影音室需兼具舒适性与美学,本案通过沙发布局、整体色调与墙面饰面相呼应,营造出静谧舒适的影音氛围。灯组配置也经过巧妙设计——后墙与顶部的射灯、侧墙的 LED 灯带,可营造多组不同情景模式:或明亮,便于业主出入;或昏暗,满足观影需求;或活泼,契合 K 歌动感,动静皆宜。此外,专业观影沙发也被调节至舒适状态,让业主在此尽享私人影音天地。


如今,越来越多人选择将影院“藏”起来。在极简主义盛行的时代,人们追求空间的整洁与纯粹,不希望各类电子设备破坏整体装修风格。嵌入式安装恰好满足这一需求,让影音设备在不需要时“隐形”,需要时又能提供震撼体验。
同时,随着生活品质提升,家已不仅是居住场所,更是彰显个人品味的艺术空间。将影院设备巧妙隐藏,既保留了娱乐功能,又维护了家居的整体美感,实现了功能与美学的完美平衡。这种“看不见的奢华”,正是当代精英人士对高品质生活的独特诠释。
用户使用需求
业主理工科出身,属技术派,注重硬件配置与服务团队的技术落地能力。他热爱电影文化,希望打造一间私人影音室,同时兼顾 KTV 功能,用于接待亲朋好友。
认识设计师
工程师:梁仟雨
工程监理:陈国豪
设计公司:广东赛宾科技有限公司
空间信息与投入 空间尺寸:长5.72×宽4.23×高2.8m,面积24㎡ 案例位置:广东佛山顺德某别墅 器材列表 7.2.4声道家庭影院 主音箱:丹拿P4-W80×3 环绕音箱:丹拿P4-W65×4 天空音箱:丹拿P4-C65×4 超低音:SVS PB1000PRO、Wharfedale W-15PRO AV放大器:JBL AVR1000 后级放大器:Saibin定制后级功放×1 讯源:Zidoo 3D硬盘蓝光播放器 投影机:光峰C800 透声幕:Swein 150英寸4K 卡拉OK 点歌机:视易K73 8T 触摸屏:视易22英寸 前级效果器:Maik-Linn P.1 定制款后级×1 KTV主音箱:Wharfedale X12-MKII×2 无线麦克风:Maik-Linn F-60D ABL电源时序器 智能控制 Control 4影院智能中控主机 Control 4智能遥控器 Control 4人体感应器 Laffey智能灯控开关面板




※ 影音中国网原创稿件,未经许可不得转载、节录及改编。
※ 致读者:影音CN所刊案例均为设计师投稿。为保障原作者权益,减少盗图纠纷,案例版面图片均已加水印处理。由此可能影响读者的阅读,特表歉意。






