
影院构建过程:声学/光学处理及特别设计
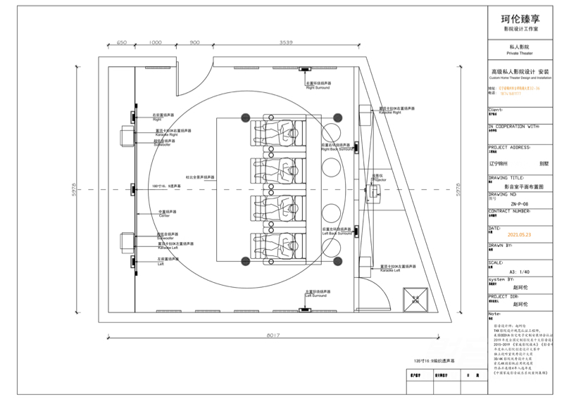
本案为独立封闭视听室,位于阳光房地下二层,原始空间非标准矩形:左右墙长度不等(左侧8.02m、右侧5.98m),屏幕墙宽度5.98m,后方为斜边连接两侧墙。设计师赵珂伦带领团队历时3年,从设计到落地,精细把控70余个工程节点,最终将不规则空间改造为符合标准的专业影音室
设备选型与系统架构
影像系统选用比利时Barco Briagi(布拉吉)定制款4K投影机,搭配Harkness Screens(哈克尼斯)180英寸超微孔1.4增益透声画框幕。播放源为亿格瑞A9三代高清播放器与Magetar UDP-900旗舰蓝光机双组合,配合10盘位30TB硬盘阵列影柜系统,实现海量片源有序存储与快速调取。
音频系统为7.4.4全景声架构,全套采用Mission(美声)定制安装系列,功放以马兰士SR-8015做解码前级,搭配两台大功率后级,确保每声道充沛推力。
K歌选用力素NEXO 2.1声道专业系统,配备4支森海塞尔演唱级无线麦克风。智能中控为Control4旗舰级系统,实现影院、K歌、灯光全设备一键联动与精准控制。



声学与光学处理
声学设计:墙面采用“吸音+扩散”复合结构,屏幕后方以厚吸音材料为主,保证主声道纯净直达声传输;侧墙与后墙结合吸音与扩散,实现声场均匀分布。针对低频驻波难题,利用前后4只双12英寸超低音,形成主动型低频驻波消声器,有效解决低频浑浊问题。顶面选用11mm厚基材环保声学动态星空,既吸收中高频反射,又配合天空声道营造三维声场。最终将空间混响时间控制在0.4~0.6秒之间,完美兼容观影与K歌需求。
光学处理充分利用地下二层无自然光优势,墙面基础饰面选用深蓝色壁布,所有声学扩散体模块均采用3分光度黑胡桃钢琴漆色,搭配黑色透声布包裹的宽频吸音模块,彻底消除二次反射光干扰。配合智能调光系统,实现灯光亮度精准调节,确保任何时段都能呈现最佳视觉效果。


特别设计
针对不规则空间,设计团队利用后方斜边原始结构,将房间拉平成标准矩形,后方三角空间改造为独立机房,侧方辟出小型酒吧区。所有音箱嵌入式安装,设备机柜嵌入独立机房并采用静音设计。动态星空顶应用高端光纤照明技术,支持流星模式,营造沉浸氛围。定制真皮影音座椅配备双电动调节、杯架、旋转桌板及隐藏储物空间,每一处细节均围绕最佳观影体验考量。



设计与调试心得
设计心得:平衡之道
高端私人影音空间的核心在于“平衡”——器材与空间的平衡、声学与美学的平衡、专业与实用的平衡。本项目坚持“专业为先,美学为辅”,所有美学设计均以不折损器材表现为前提。针对不规则空间,通过巧妙改造实现标准矩形声学环境;针对K歌与观影双重需求,通过独立系统配置与声学兼容设计,让用户无需在两者间妥协。设计不仅是器材的堆砌,更是声学、美学、智能的全方位融合。
调试心得:三分器材,七分调试
系统调试历时一周,实现全声道精细化校准。全景声各声道进行相位与电平精准校准,让声场定位更精准、层次更分明;4超低音采用“相位对齐+EQ优化”技术,使低频下潜更深、更有弹性;投影机与幕布完成专业色彩校准,确保色彩还原与亮度均匀度达到最佳状态。K歌系统单独调试,兼顾人声还原与现场感表现。智能中控充分考量人性化体验:观影灯光自动按时序舒缓关闭;影片暂停时后方30%灯光亮起,平衡全黑观影与手机使用的视觉适应。所有调试均以最终用户体验为归依。





总结
本案堪称锦州地区定制影音领域的标杆之作,以90万元总投入(影音器材75万元,声学及美学15万元),实现了从器材配置、声学处理到智能体验的全维度突破。设计师赵珂伦表示:“私人影院不仅是器材的堆砌,更是将专业标准与用户需求深度结合,才能打造出真正有温度的高端影音空间。”业主亦对最终效果给予高度认可。


用户需求
业主希望打造一间从配置、体验到施工工艺等各方面,均能成为本地标杆的私人影院。核心诉求包括:实现7.4.4全景声沉浸式观影,搭配媲美专业演唱级别的K歌系统,全设备智能联动、操作便捷,空间设计兼具专业感与轻奢美学,兼顾家庭使用与小型圈层影音社交需求。

认识设计师
设计师:赵珂伦
设计公司:辽宁锦州珂伦臻享影院设计工作室
空间信息与投入
项目地址:辽宁锦州凤还朝悦府
空间尺寸:约45㎡(非标准矩形,改造后符合THX规范)
整体造价:90万元(影音器材75万元+声学/美学15万元)
器材列表
主音箱:Mission M-620×3
环绕音箱:Mission M-610×4
天花音箱:Mission M-CI761×4
超低音:Mission M-5122A×4
AV前级:马兰士SR-8015
多声道后级:WENTINS A8000(7声道)+A5000(5声道)
投影机:Barco Briagi
透声幕:Harkness Screens超微孔180英寸1.4增益画框幕
播放机:麦尼塔UDP-900蓝光机、亿格瑞A9三代硬盘播放机、日本原装10盘位硬盘阵列影库(总容量30TB)
线材:Fibbr 10m HDMI线、MPS 10m HDMI线以及L-400喇叭线200m
智能中控
Control4 EA1中控主机+260经典款人体工学摇控器
Insona双路负载4按键场景控制面板×2
Insona双路负载4按键调光控制面板×2
专用授权电源时序器
16只专用可调光筒灯
36度出射角带调光驱动器(防炫)
影院建声处理模组(装配式40平米套餐)
声辉WAVE600波浪式MLS全频声学体(扩散+低频吸收)
声辉典雅系列布艺全频吸音调谐板
2.1卡拉OK系统
音箱:NEXO EPS-10全频×2+ELS-400超低音
功放:NEXO NXAMP4X1MK2
前级效果器:JBL KX180
点歌机:雷石S11含触屏+3TB歌库
麦克风:森海塞尔EW100-835G4×4
高端配接线材及接头
其它
E-JOIN猛犸专用机柜E5-1980
环保声学动态星空顶
影美极定制电动影音座椅G810(独立双扶手款)×4
声盾重型隔声门(日本原装气密加压把手)

※影音中国网原创稿件,未经许可不得转载、节录及改编。
※致读者:影音CN所刊案例均为设计师投稿。为保障原作者权益,减少盗图纠纷,案例版面图片均已加水印处理。由此可能影响读者的阅读,特表歉意。






